2022
// HALLES DES SIBYLLES //
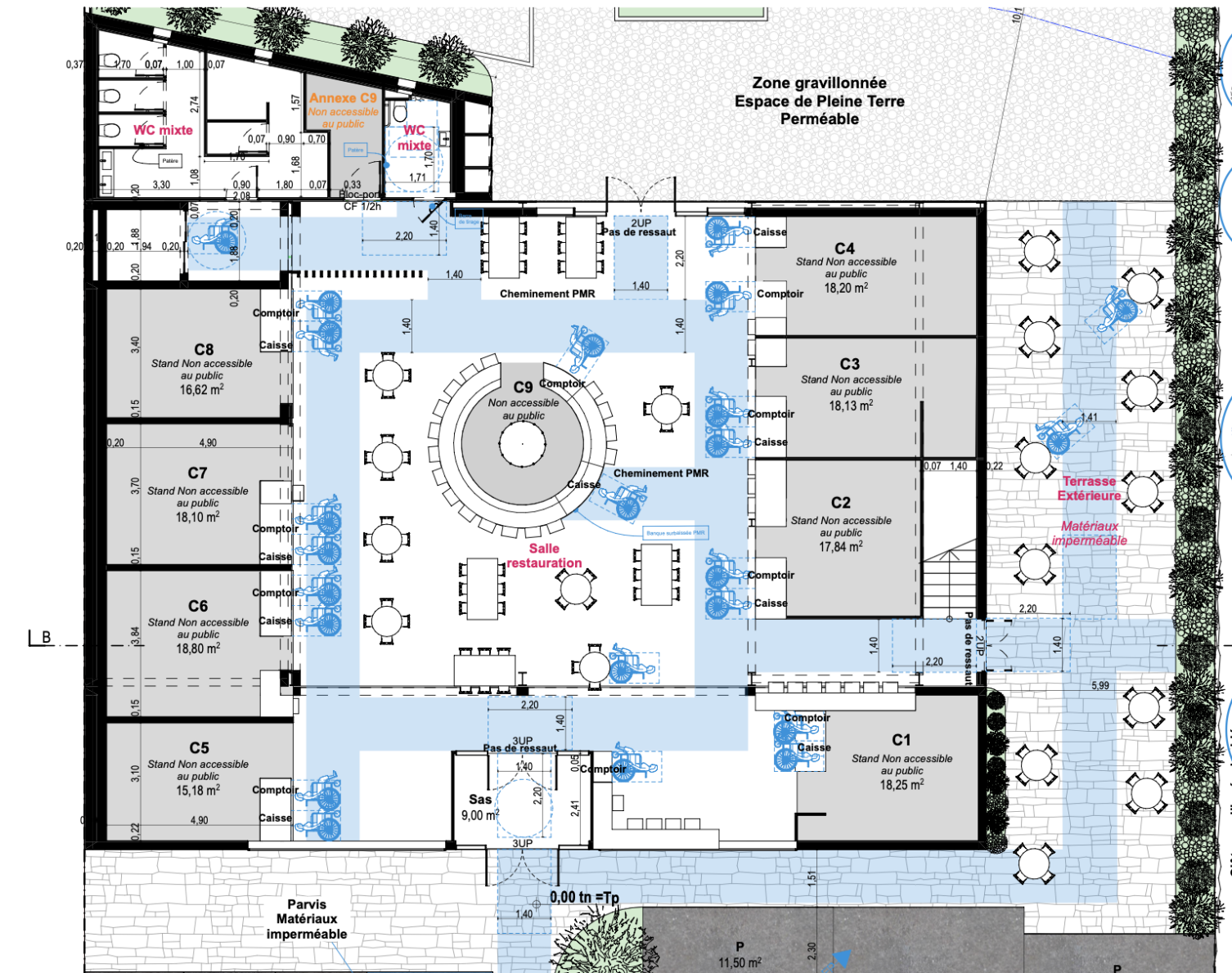
Halles gourmandes
Les Pennes Mirabeau (13)
État : Mission Partielle - Terminé
Montant des travaux : 400 000 € H.T
Surf SP : 440 m2
Décoration intérieure :
JUNGLE ART, Mme Hélène Daumas
L’opération consiste en la construction d’un établissement recevant du public (ERP) à usage de restauration sur le principe de « halles gourmandes ».
Le programme est composé d’un bâtiment de R+1, comprenant 8 stands de restauration, un bar central, un bureau, une réserve, des sanitaires et un espace tables en rez-de-chaussée, en mezzanine puis en terrasse extérieure.
Le projet se veut fonctionnel tout en ayant une façade travaillée au-delà de sa seule fonction. Un traitement soigné a été apporté aux bardages métalliques.
En façade Est, se trouve l’entrée principale du bâtiment permettant l’accès direct depuis les places de parking aménagées. Les autres façades sont des accès secondaires et des sorties de secours.
4 avenue de la première armée française
13700 MARIGNANE
Tel 04/42/77/18/88