2023
// HÔTEL IBIS //
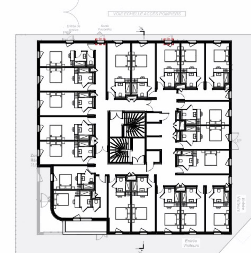
73 Chambres
Marignane (13)
État : Mission Complète - Terminé
Maître d'ouvrage : AMETIS - ACCORD
Montant des travaux : 3 206 000 € H.T
Surf SP : 2 600 m2
Dernier bâtiment d'un ensemble de bâtiments d'activité, l'hôtel vient en fond de parcelle et culmine de sa hauteur comme un phare. Sa couleur en est le témoin. Ce bâtiment, en R+4 est ainsi le point d’orgue du projet.
Ses façades particulièrement soignées seront traitées de deux manières : le volume central en peinture dorée brillante et le volume extérieur en peinture blanche agissant comme une double peau et créant un jeu de façades original. La boite dans la boite est ainsi créée.
Le RDC fait place à un grand volume en double hauteur sur tous les espaces communs afin de profiter d'une belle lumière. Cette dernière est donnée par une verrière elle-même en double hauteur.
L'aménagement intérieur conçu en collaboration avec Agencement 3D sous la direction de la charte du groupe Accord.
4 avenue de la première armée française
13700 MARIGNANE
Tel 04/42/77/18/88