2020
// AGENCE GÉOMÈTRE PRÉAU //
Bâtiment Activités + Logements
MARIGNANE (13)
État : Mission Complète - Terminé -
Montant des Travaux : 3 200 000 € H.T.
Surf SP : 210 m2
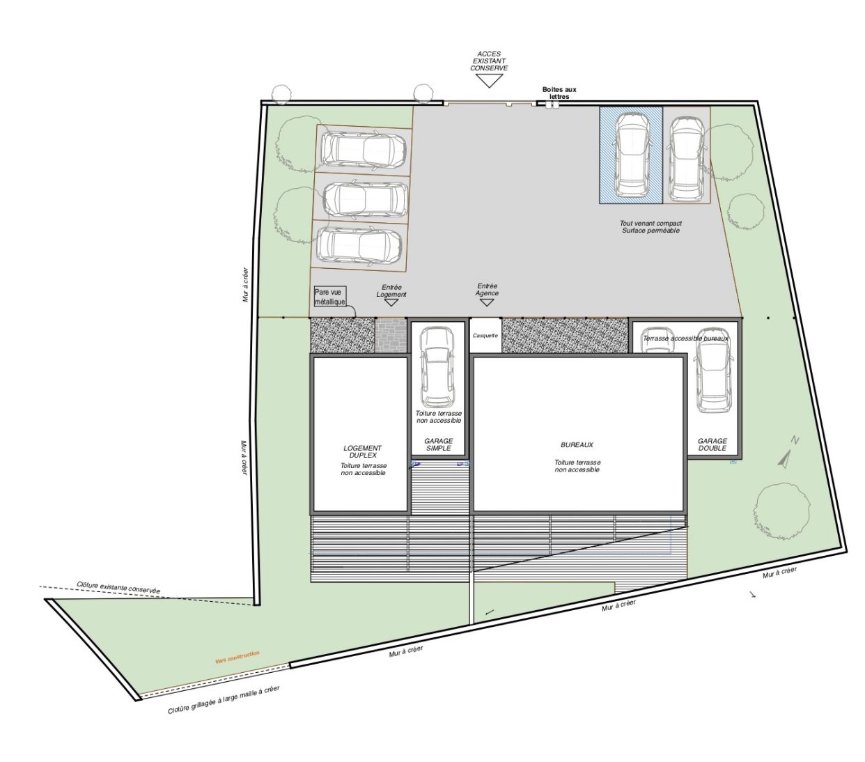
Le projet traite de la création d’un bureau de géomètre et d’un T3 locatif tous les deux en R+1 sur un terrain quasiment plat. Le futur ensemble construit s’organise en retrait par rapport à la limite nord de la parcelle dans le but de laisser un espace de parking pour la future activité. Un jeu de retrait est créé entre les garages et le bureau et le logement afin de protéger l’espace habité de l’espace de parking. Un claustra métallique en façade nord vient compléter ce jeu de protection. Au sud, le logement sera pourvu d’une terrasse surmontée d’une pergola pour créer un confort d’été. De même pour la partie des bureaux. Les retraits des parties de vie permettent la création de petits patios ou sas d’entrée permettant de protéger la construction de la zone parking.
La partie basse des bureaux est pourvue d’un revêtement en pierre dans le but de rappeler le lien du travail de géomètre avec l’élément naturel. Et d’apporter un cachet à la construction en contraste avec les menuiseries métalliques.
4 avenue de la première armée française
13700 MARIGNANE
Tel 04/42/77/18/88