2024
// ALLIANCE PISCINE //
Show room et Bureaux
Marignane (13)
État : Mission Complète - Terminé
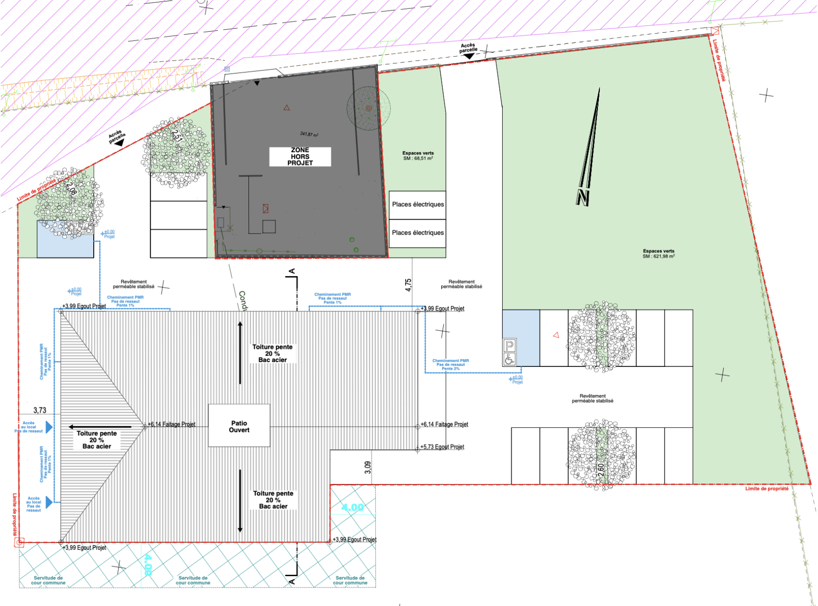
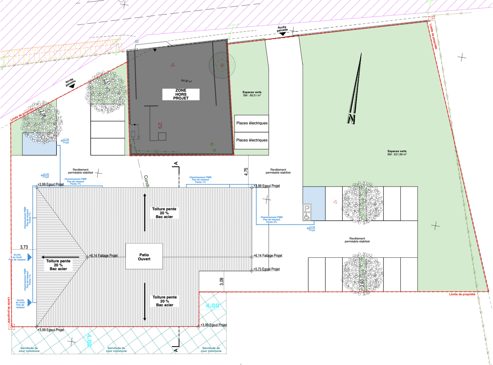
Montant des travaux : 526 729,50 € H.T
Surf SP : 390 m2
Ce projet consiste en la rénovation et l'agrandissement d'un local existant à vocation de vente de piscines. Ainsi que de la création de 3 locaux pour de la location. Le parti architectural fut de créer un bâtiment noir, en totale contradiction avec l’environnement proche, afin d’attirer les regards.
Un jeu de lames noir mat et noir brillant permet de créer un effet visuel dynamique à atypique. Un porche couvert ceinture le bâtiment pour protéger les façades vitrées et les accès aux locaux.
À l’intérieur de la cellule principale, un grand escalier métallique laisse transparaitre un mur végétal au travers de gardes-corps vitrés. Cet élément central est situé sous une verrière, plongeant ainsi cet espace situé en fond de bâtiment sous une lumière zénitale.
4 avenue de la première armée française
13700 MARIGNANE
Tel 04/42/77/18/88