2019 // 134 Logements
LES JARDINS DE NOTRE DAME // Marignane (13)
État : Mission Complète - Terminé
Maître d’ouvrage : Kauffman & Broad
Montant des travaux : 8 000 000 € H.T
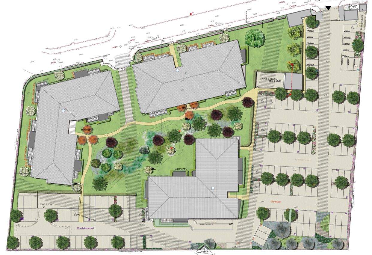
Surface SP : 7 419 m2
La première intention qui a guidé la conception du projet a été d’allier originalité et espaces verts en cœur d’ilot, tout en tenant compte des contraintes du terrain liées à l’implantation de différentes servitudes.
Un jeu de glissement vertical et horizontal entre balcons est mis en avant par leur accroche sur de grands voiles porteurs. Les balcons sont traités par un jeu de couleur en enduit afin de créer une dynamique de façade. Les garde-corps, quant à eux, sont traités en vitrage opalin monté sur une structure métallique ajourée et complétée d’une partie maçonnée. Cette alternance permet de créer une dynamique de façade. Une certaine légèreté est ainsi donnée aux façades par ce jeu de transparence.
Les attiques sont agrémentés de brises-soleil ajourés qui viennent couronner le bâtiment.
Les brises-soleil sont interrompus par les casquettes des terrasses. Cette alternance participe également à la dynamique de la façade
Le pignon du bâtiment A est traité par l’image d’un ruban qui prend naissance au sol, borde les balcons et rétablit le lien avec le reste du bâtiment. Cette image, placée à l’entrée de l’opération, se positionne comme un signe d’accompagnement et de bienvenue.
4 avenue de la première armée française
13700 MARIGNANE
Tel 04/42/77/18/88