2019
VILLA Au // Marignane (13)
État : Mission Complète - Terminé
Maître d’ouvrage : Privé
Montant des travaux : NC € H.T
Surf Plancher : 91 m2
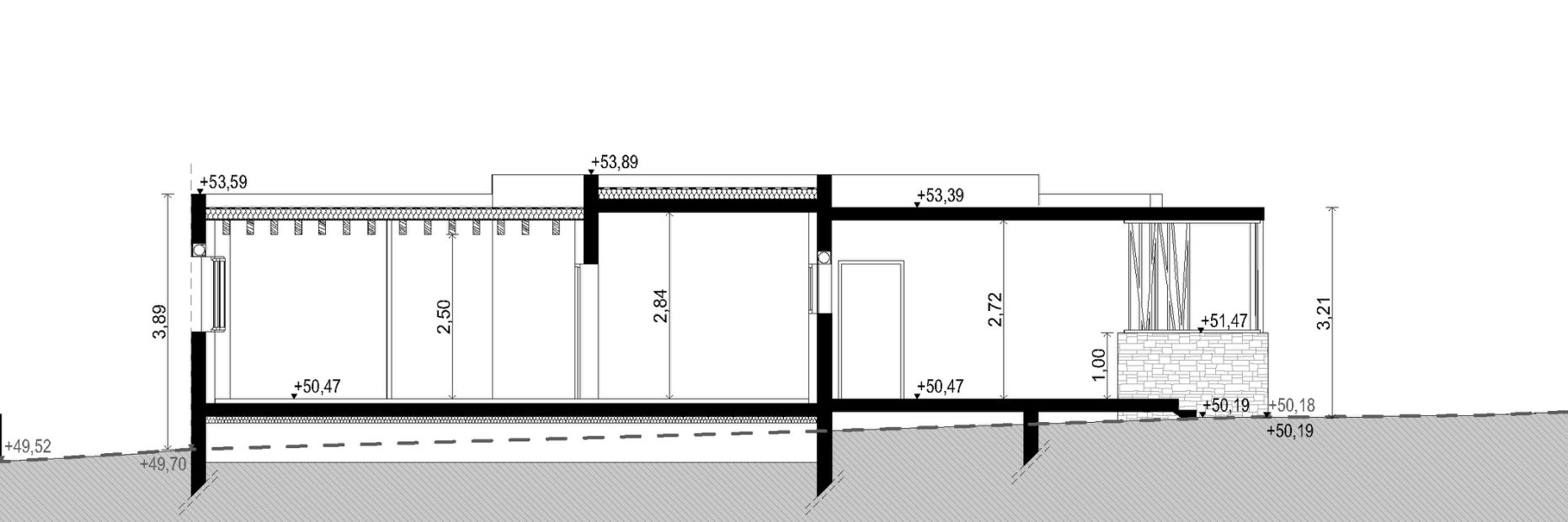
Le projet traite de la création d’une maison individuelle sur un terrain en pente douce, étroit et allongé. L’habitation s’organise le long de la pente du terrain, en limite de propriété à l’Est et sur la bande des trois mètres au Nord et à l’Ouest. Le projet se compose de quatre volumes distincts, ayant chacun un usage propre : garage, espaces à vivre, chambre parentale et chambres annexes.
Le séjour est traversant, ce qui permet de bénéficier d’un apport de lumière quotidien et d’une vue sur la colline. Les volumes sont disposés en quinconce afin de libérer des espaces extérieurs et de connecter la propriété à la pente.
De plus, un travail sur les hauteurs des volumes a été pensé dans le but de mettre en valeur l’espace séjour-cuisine et de gagner en hauteur sous-plafond. Un enduit gris est appliqué sur ce volume, le reste de la maison lui est revêtu d’un enduit blanc cassé afin d’accentuer cet effet.
La façade Sud, marquant l’entrée, est rythmée par de nombreux éléments : claustra, poteau et pergola métalliques. L’entrée de l’habitation sera marquée par l’aménagement de murs en pierre supportant une casquette de béton pour protéger des intempéries. La terrasse recevra une pergola métallique utilisée comme brise-soleil.
4 avenue de la première armée française
13700 MARIGNANE
Tel 04/42/77/18/88