2016
Extension & Réhabilitation
VILLA STRA // Ensuès-la-Redonne (13)
État : Mission Complète
Maître d’ouvrage : Privé
Montant des travaux : NC € H.T
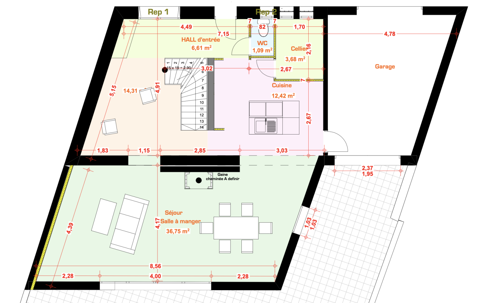
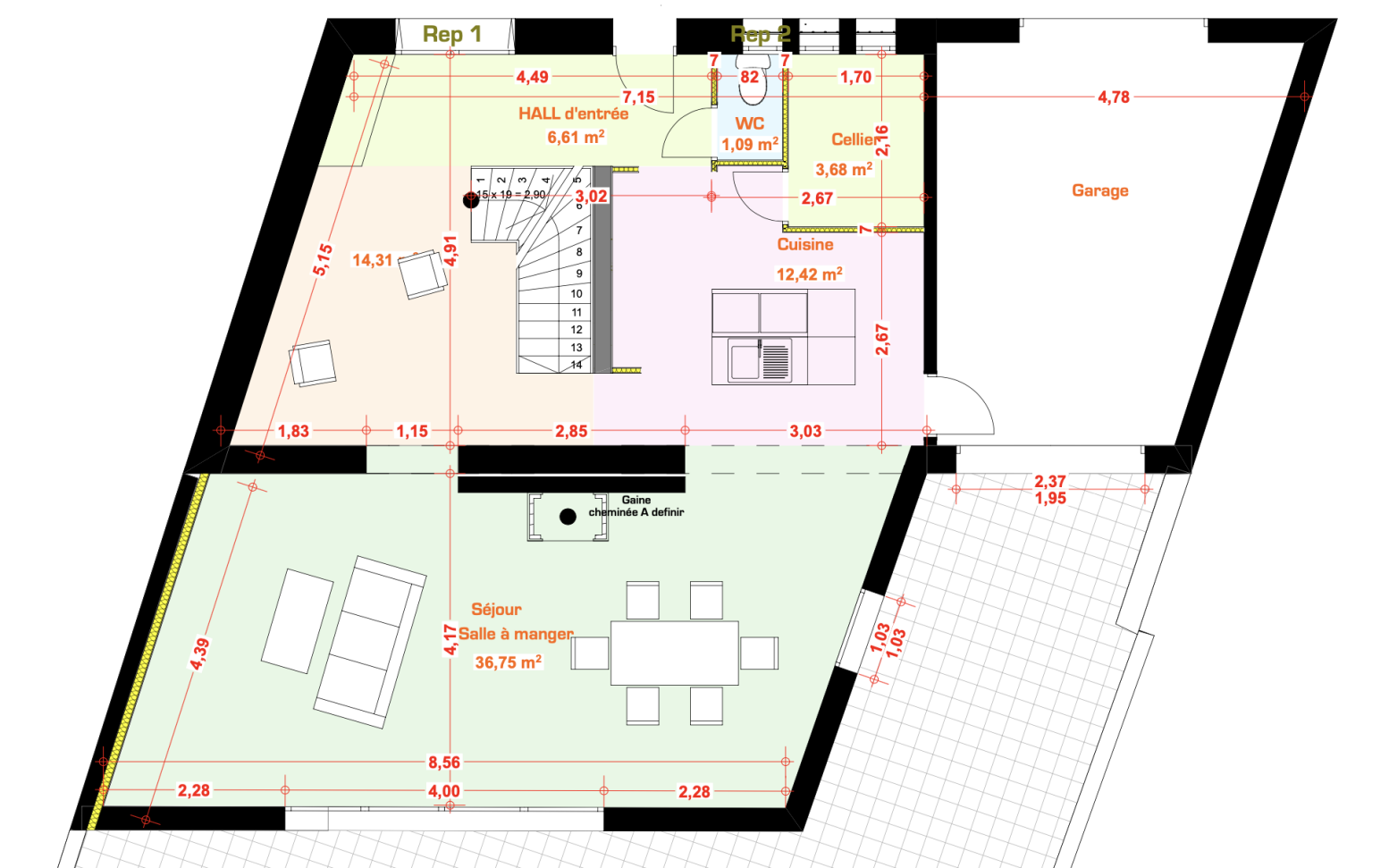
Surf Plancher : 130 m2
Le projet architectural consiste d'une part à réhabiliter la villa existante et d'autre part à créer une petite extension au rez-de-chaussée et une surélévation partielle sur le volume donnant dans le jardin.
L’intervention architecturale se situe essentiellement sur la partie sud, donnant sur le jardin. La toiture en pente est démolie pour laisser place à une toiture terrasse en partie accessible en limite Ouest au R+1. Le volume de la surélévation en R+1 sera couvert par des tuiles. Son pourtour est marqué par des pignons montants afin d’affirmer ce volume émergent.
La piscine est implantée dans le prolongement du volume de l’étage, ce qui permet de retrouver une cohérence en plan sur l’ensemble du projet.
4 avenue de la première armée française
13700 MARIGNANE
Tel 04/42/77/18/88