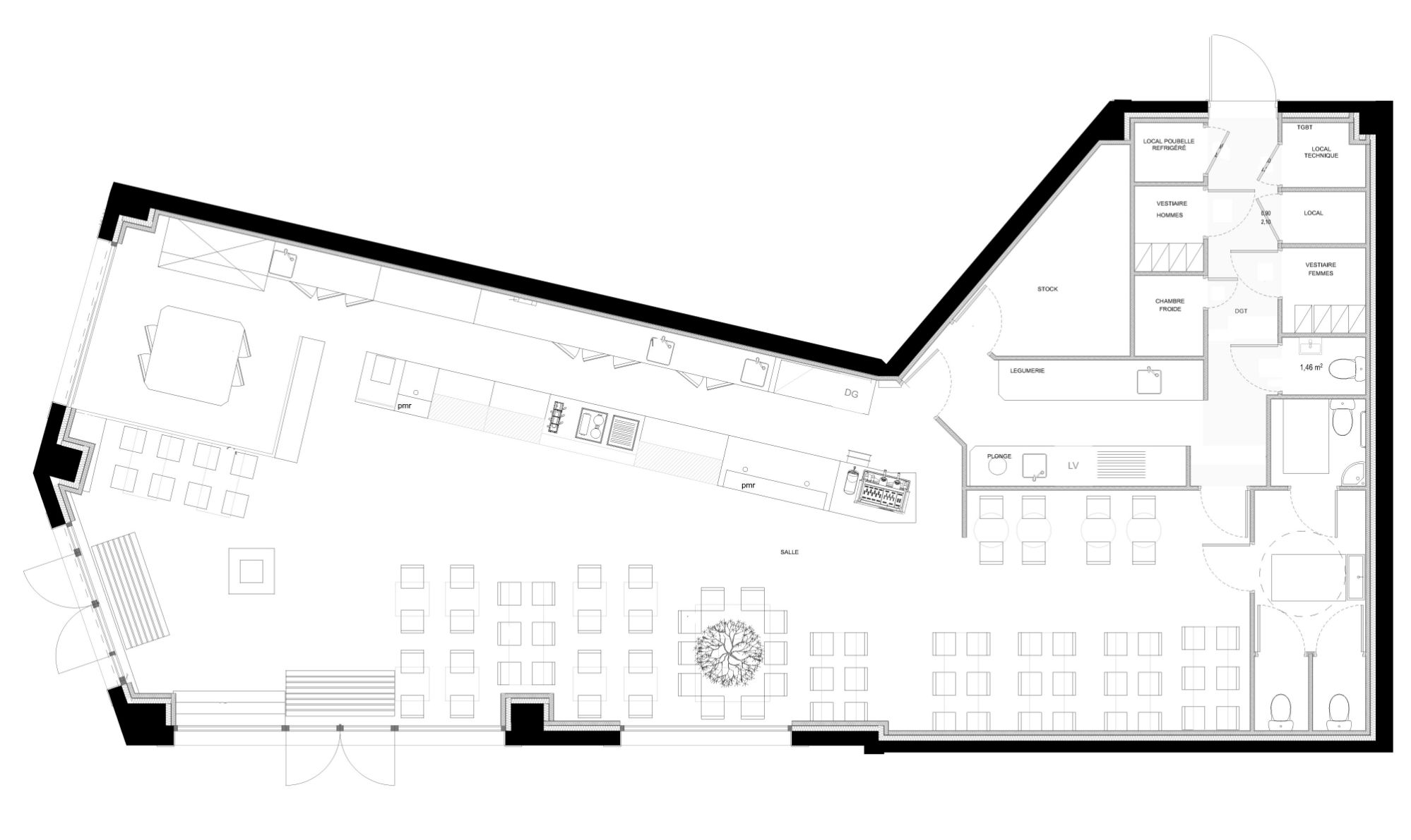
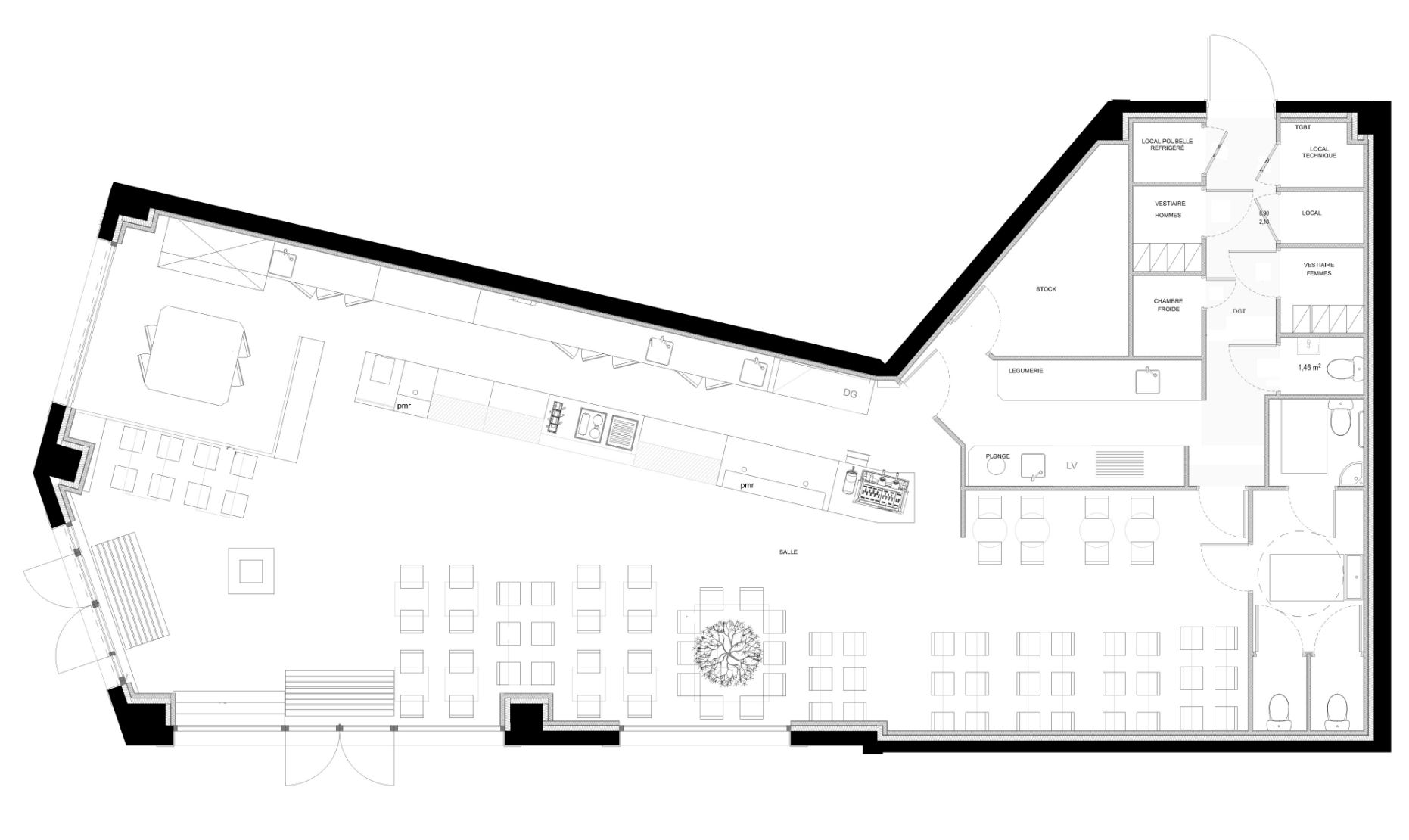
RESTAURANT OLIVADORS // MIRAMAS (13)
Aménagement d'un restaurant
2017 Etat : Terminé - Maître d’ouvrage : Privé
Montant des travaux : 160 000 € H.T hors mobilier
Surf Plancher : 180 m2
Architecte : ROCCARO ARCHITECTURE
Agenceur et Designer : OGGI DESIGN
Situé dans le village des Marques Mac Arthur Glen, le projet consiste à aménager une coquille vide en restaurant.
Le restaurant s'organise autour d'une longue banque d'accuueil permettant la préparation des plats et services en relation direct avec le public. La zone des préparations chaudes est mise sous verriére afin que le public suive en direct l'élaboration des plats. Les couleurs, décorations sont orientés sur le théme de l'Olivier.
CONTACT: 4 avenue de la première armée française - 13700 MARIGNANE Tel 04/42/77/18/88 Fax 09/56/52/80/43